9 200€


















Ce complexe de deux conteneurs combinés de 35 m² est conçu pour fournir un espace de vie pratique, durable et facilement transportable. Il est adapté à une utilisation tout au long de l’année, grâce à une isolation efficace et des équipements modernes. Chaque module est fabriqué à partir de panneaux sandwich de haute qualité, garantissant une excellente isolation thermique et nécessitant peu d’entretien. Il comprend une salle de bain avec WC, une cuisine, une salle à manger et…
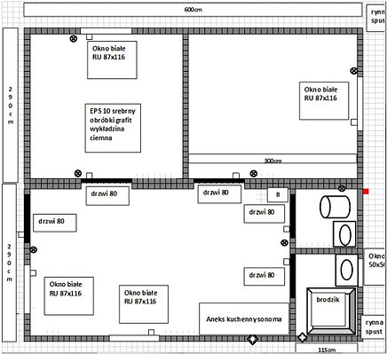
Ce complexe de deux conteneurs combinés de 35 m² est conçu pour fournir un espace de vie pratique, durable et facilement transportable. Il est adapté à une utilisation tout au long de l’année, grâce à une isolation efficace et des équipements modernes. Chaque module est fabriqué à partir de panneaux sandwich de haute qualité, garantissant une excellente isolation thermique et nécessitant peu d’entretien. Il comprend une salle de bain avec WC, une cuisine, une salle à manger et deux chambres, le tout bien équipé pour répondre aux besoins quotidiens.
Caractéristiques principales :
– Isolation tout au long de l’année : Les modules sont composés de panneaux sandwich qui assurent une isolation optimale, que ce soit en hiver ou en été.
– Installations complètes : Équipés de systèmes de ventilation, d’électricité, d’eau et d’égouts, ces conteneurs offrent toutes les commodités modernes.
– Durabilité : Conçus à partir de matériaux de haute qualité, les panneaux sandwich sont robustes et nécessitent peu d’entretien.
– Mobilité : Le conteneur est conçu pour être facilement déplacé et transporté, ce qui le rend idéal pour des projets évolutifs ou temporaires.
Dimensions :
– Superficie totale : 35 m²
– Dimensions de chaque module :
– Longueur extérieure : 6,0 m
– Largeur extérieure : 2,9 m
– Hauteur intérieure : entre 2,6 m et 2,4 m
Équipements inclus :
Salle de bain :
– Installation électrique :
– 2 prises
– 1 interrupteur
– Éclairage LED (1 pièce)
– Ventilation : 1 ventilateur
– Sanitaires :
– Receveur de douche avec rideau (90×90 cm)
– Lavabo avec meuble (50 cm)
– Branchement pour machine à laver
– Portes : porte intérieure en acier blanc (80 cm)
– Fenêtre : fenêtre avec trappe (50×50 cm)
Toilettes :
– WC : toilettes compactes modernes
– Chauffe-eau : chauffe-eau électrique de 50 L
– Portes : porte intérieure en acier blanc (80 cm)
Cuisine et Salle à manger :
– Installation électrique :
– 3 phases
– 3 prises
– 1 interrupteur
– Éclairage LED (1 pièce)
– Ventilation : 1 ventilateur
– Sanitaires : évier avec batterie, raccordé à l’eau et aux égouts
– Meubles : ensemble de 4 armoires « Sonoma dab » avec évier
– Électroménager : réfrigérateur sous comptoir inclus
– Portes : porte intérieure en acier blanc (80 cm)
– Fenêtre : fenêtre PVC UR (110×110 cm)
– Chauffage : chauffage électrique inclus
Chambre 1 :
– Installation électrique :
– 2 prises
– 1 interrupteur
– Éclairage LED (1 pièce)
– Portes : porte intérieure en acier (80 cm)
– Fenêtre : fenêtre PVC UR (80×110 cm)
– Chauffage : chauffage électrique inclus
Chambre 2 :
– Installation électrique :
– 2 prises
– 1 interrupteur
– Éclairage LED (1 pièce)
– Portes : porte intérieure en acier (80 cm)
– Fenêtre : fenêtre PVC UR (80×110 cm)
– Chauffage : chauffage électrique inclus
Spécifications techniques :
– Construction : structure en panneaux sandwich (feuille-panneau en polystyrène) pour une isolation et une solidité optimales.
– Murs, toiture et plancher : panneau sandwich de 100 mm d’épaisseur avec une âme en polystyrène, offrant une transmission thermique de 0,38 W/m²K.
– Toiture : à simple pente pour une évacuation efficace de l’eau.
– Plancher : composé d’un panneau sandwich + OSB de 15 mm, recouvert d’un revêtement en PVC de 2,2 mm pour un sol confortable et résistant.
– Portes extérieures : en acier, isolées, de dimensions 80 cm de largeur et 200 cm de hauteur.
– Portes intérieures : en acier blanc pour une durabilité accrue et une finition élégante.
Avantages :
– Prêt à l’emploi : Ce conteneur est entièrement équipé pour offrir tout le confort nécessaire à la vie quotidienne.
– Isolation optimale : Grâce aux panneaux sandwich de 100 mm, la transmission thermique est minimisée, garantissant des économies d’énergie et un confort constant, quelle que soit la saison.
– Durable et sans entretien : Les matériaux utilisés sont robustes et conçus pour durer sans nécessiter de maintenance régulière.
– Facilité de transport : Sa conception permet un déplacement et une installation faciles, que ce soit pour un usage temporaire ou permanent.
Ce module combiné de 35 m² représente une solution idéale pour un espace de vie confortable, durable et bien équipé, offrant une flexibilité maximale pour des besoins de logement ou d’installation temporaire, avec toutes les commodités nécessaires.