3 200€












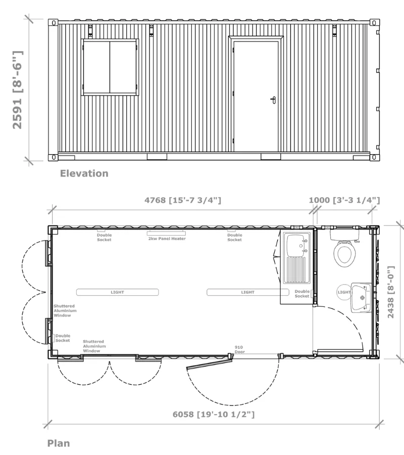
Container Bureau 20 Pieds avec Cuisine et Toilettes – Solution Modulaire Complète et Fonctionnelle
Ce Container est une solution modulaire clé en main conçue pour offrir un espace de travail équipé, confortable et facilement déplaçable. Idéal pour les professionnels recherchant un bureau autonome avec points d’eau et zone de préparation, il s’adapte aux chantiers, événements temporaires ou extensions d’activité.
Caractéristiques principales
Container Bureau 20 Pieds avec Cuisine et Toilettes – Solution Modulaire Complète et Fonctionnelle
Ce Container est une solution modulaire clé en main conçue pour offrir un espace de travail équipé, confortable et facilement déplaçable. Idéal pour les professionnels recherchant un bureau autonome avec points d’eau et zone de préparation, il s’adapte aux chantiers, événements temporaires ou extensions d’activité.
Caractéristiques principales
Avantages d’utilisation
Ce container aménagé offre :
Applications possibles
Le Container Bureau 20 Pieds avec Cuisine et Toilettes constitue une solution modulaire pratique et adaptable, répondant aux besoins professionnels d’aménagement rapide avec commodités intégrées.